THIẾT KẾ & THI CÔNG
ANHLAI Furniture với hơn 15 năm kinh nghiệm thiết kế, sản xuất và thi công nội thất cho các công trình: biệt thự, nhà phố, villa, resort, khách sạn … với các dòng gỗ tự nhiên, gỗ óc chó tự nhiên, gỗ sồi nhập khẩu từ Mỹ với đội ngũ KTS, công nhân viên dày dặn kinh nghiệm, tinh thần trách nhiệm, tự tin mang lại những sản phẩm chất lượng và tinh tế nhất tới tay người tiêu dùng.
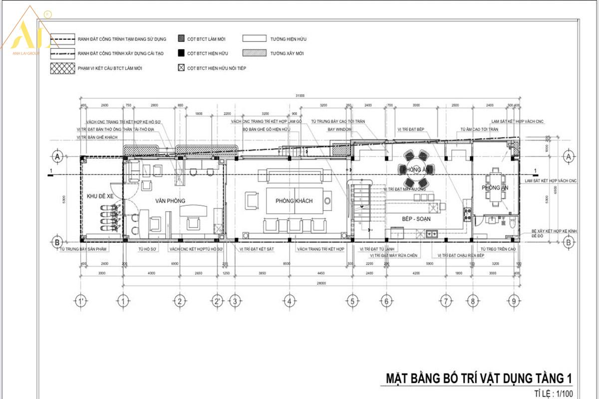
ANHLAI Furniture Thiết Kế & Thi Công Nội Thất Villa tại ĐakLak


BÀI VIẾT LIÊN QUAN
ANHLAI Furniture Giới Thiệu Villa Full gỗ Walnut Nhập Mỹ của khách hàng 2026 do CTY ANHLAI Thiết Kế & Thi Công .
Không gian nội thất biệt thự thông tầng này chúng tôi thiết kế mang đậm phong cách sang trọng –...
ANHLAI Furniture Thiết Kế & Thi Công Nội Thất Villa , Phong Cách và Mẫu mới nhất hiện nay trên thị trường
ANHLAI Furniture Thiết Kế & Thi Công Nội Thất Villa , Phong Cách và Mẫu mới nhất hiện nay trên...
ANHLAI Furniture Hoàn thiện bản vẽ công trình VILLA tại Lâm Đồng
ANHLAI Furniture Hoàn thiện bản vẽ công trình VILLA tại Lâm Đồng với phong cách gỗ óc chó ,kết hợp...
Các Dự Án ANHLAI Furniture Đang Thi Công Villa ,Biệt Thự
ANHLAI Furniture Thiết Kế & Thi Công Villa Biệt Thự - Chúng tôi đang triển khai các căn villa đã...
ANHLAI Furniture Chuyên Sản Xuất Thi Công Nội Thất Gỗ Tự Nhiên Hiện Đại và Tân Cổ Điển
ANHLAI Furniture là một công ty chuyên sản xuất và thi công nội thất gỗ tự nhiên hiện đại cao...
ANHLAI Thiết Kế & Thi Công Nội Thất Gỗ Óc Chó ( walnut ) tại dự án , Villa Mr Tuấn , Q12 TP HCM .
- ANHLAI Thiết Kế & Thi Công Nội Thất Gỗ Óc Chó ( walnut ) tại dự án , Villa...
ANHLAI Furniture Thiết Kế & Thi Công Nội Thất Villa tại ĐakLak
ANHLAI Furniture Thiết Kế & Thi Công Nội Thất Villa tại ĐakLak , Phong Cách và Mẫu mới nhất hiện...
THIẾT KẾ VÀ THI CÔNG BIỆT THỰ CỔ ĐIỂN TẠI PHAN HUY ÍCH TÂN BÌNH TPHCM
ANHLAI Furniture thiết kế xong bản vẽ nhà biệt thự cổ điển kết hợp đồ rời hiện đại phá cách...
ANHLAI Furniture Thiết Kế và Thi Công Nội Thất Nhà Phố
Không gian nội thất nhà phố bằng chất liệu gỗ óc chó nhập Mỹ kết hợp các chi tiết và...
THIẾT KẾ VÀ THI CÔNG PHÒNG BẾP PHONG NGŨ GỖ ÓC CHÓ KẾT HỢP GỖ SỒI
Không gian nội thất mang phong cách hiện đại cao cấp, kết hợp giữa tối giản tinh tế và sang...
THIẾT KẾ THI CÔNG FULL NỘI THẤT GỖ ÓC CHÓ ( walnut ) NHÀ VƯỜN TẠI THỦ DẦU MỘT BÌNH DƯƠNG
Nội thất Biệt Thự Tân Cổ Điển của ANHLAI Furniture mang đến cho không gian sống của bạn sự sang...
THIẾT KẾ THI CÔNG NỘI THẤT GỖ ÓC CHÓ (walnut) TẠI CĂN HỘ DUPLEX VINHOME CENTRAL
ANHLAI Furniture là một công ty thiết kế và thi công nội thất chuyên nghiệp. Với đội ngũ nhân viên...
THIẾT KẾ THI CÔNG NỘI THẤT GỖ ÓC CHÓ ( walnut ) CHO BIỆT THỰ PHỐ BÌNH THẠNH TP THỦ ĐỨC
ANHLAI Furniture Hân Hạnh được triển khai bản vẽ nội thất gỗ óc chó dự án biệt thự ven sông...
THIẾT KẾ THI CÔNG NỘI THẤT GỖ ÓC CHÓ ( walnut) CĂN HỘ DUPLEX THÔNG TẦNG TẠI CC CELADON MALAYSIA TÂN PHÚ
ANHLAI Furniture Vinh hạnh được chủ đầu tư Việt Kiều tin tưởng bàn giao căn hộ Duplex tại dự dán...
THIẾT KẾ & THI CÔNG CĂN HỘ SUNRISE NỘI THẤT GỖ ÓC CHÓ ( walnut ) TÔNG SÁNG
ANHLAI Furniture vinh hạnh dduocj chủ đầu tư tin tương bàn giao căn hộ 128m2 tại Sunrise tháp V1 để...
THIẾT KẾ THI CÔNG BIỆT THỰ THÔNG TẦNG GỖ ÓC CHÓ NHẬP KHẨU MỸ
Bạn mơ ước sở hữu một biệt thự thông tầng với vẻ đẹp sang trọng, đẳng cấp và chất lượng...
THIẾT KẾ VÀ THI CÔNG NỘI THẤT GỖ ÓC CHÓ CHO BIỆT THỰ
Nội thất gỗ óc chó nhập khẩu từ Mỹ cho biệt thự là một lựa chọn cao cấp. Gỗ óc...
THIẾT KẾ & THI CÔNG GỖ ÓC CHÓ CHO RESORT
Thi công gỗ óc chó cho resort là một cách tuyệt vời để tạo ra một không gian nghỉ dưỡng...
THI CÔNG NỘI THẤT GỖ ÓC CHÓ NHẬP KHẪU MỸ
Thi công gỗ óc chó tự nhiên là quá trình sử dụng gỗ óc chó tự nhiên để chế tác...
THIẾT KẾ VÀ THI CÔNG GỖ ÓC CHO CHO KHÁCH SẠN
Thi công gỗ óc chó cho khách sạn là một lựa chọn tuyệt vời để nâng tầm không gian, mang...
THIẾT KẾ KIẾN TRÚC NỘI THẤT
Với đặc điểm về diện tích khá đặc thù, thiết kế kiến trúc nội thất các ngôi nhà luôn cần sự...
THI CÔNG NỘI THẤT TRỌN GÓI
Công Ty Thi Công Nội Thất ANHLAI Furniture hợp tác và thực hiện ý nghuyện đó của bạn, chúng tôi...


































































